
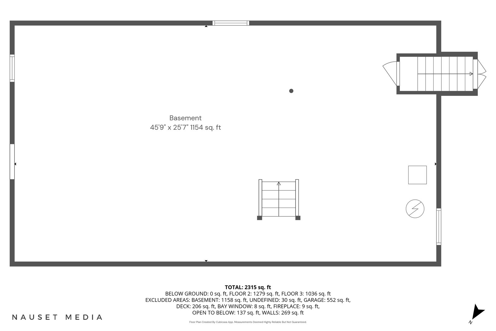
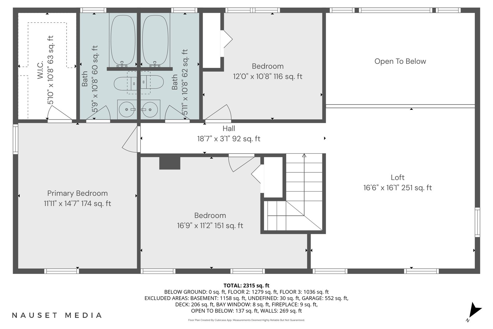
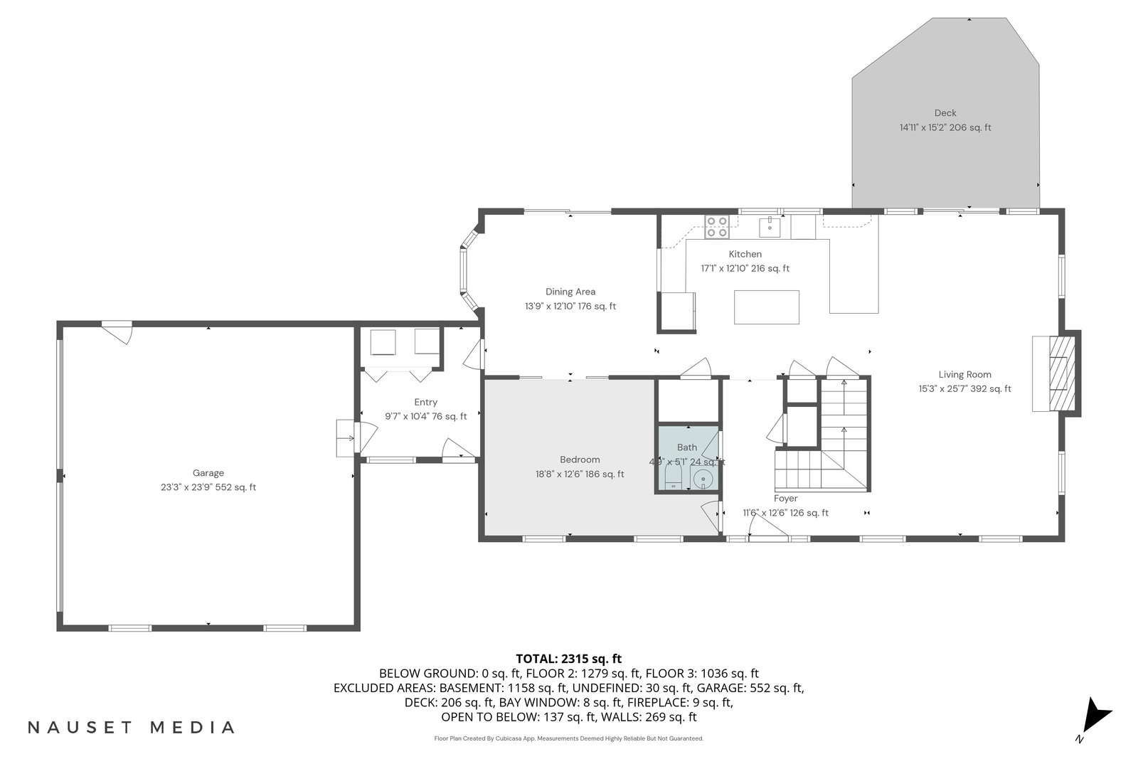
Deerfield Estates - This traditional Colonial offers 4 bedrooms, 2.5 baths, and a private lot in one of Brewster's most desirable neighborhoods. Abutting over 800 acres of Punkhorn Conservation land and just a short distance from Upper Mill Pond, the home provides both privacy and access to nature.Custom-built and well-maintained, the residence features a cathedral-ceiling living room with a brick fireplace, hardwood floors, and a slider leading to the rear deck. The spacious kitchen is well appointed and flows into a generous dining area with its own slider opening to the backyard. A den, half bath, and full laundry complete the first floor.Upstairs, the primary suite offers a walk-in closet and private bath. Three additional bedrooms, a full bath, and a loft area complete the second level. Additional highlights include an oversized garage with direct access and a brand-new roof (2023) with transferable warranty.